April 2026
Harlow Farmhouse Rehabilitation: Ellisville Harbor State Park

Harlow House, built in 1939

Harlow House is West Work’s renovation and decarbonization project with a remarkable community story. Located in Plymouth, MA and built in 1939, the house was the replica of a tavern that was destroyed by fire. As the last remaining building of a former farm complex with land history spanning four centuries of agricultural occupancy, the Massachusetts Department of Conservation and Recreation acquired it in the 1980s or 90s for use as staff housing. Later, it became a part of the Massachusetts Historic Curatorship program, in which it was rented as a single family residence. In 2022, while unoccupied, a burst pipe destroyed much of the property.

Undated historic photo of the farm complex

As the DCR sought to launch a feasibility study for community use, West Work was tasked with electrifying the systems and designing a high performance building envelope, putting the building on a path to net zero.

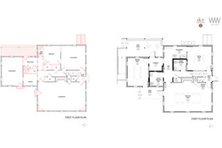
West Work’s demolition plan (left) and new floor plan (right)

The building still maintained the form of a house the form of a house with a dining room, kitchen, living room; West Work Made plans to update its accessibility, remove gas-fired equipment, and replace them with heat pumps and electric hot water tanks. We reconfigured walls to accommodate a multipurpose space with rooms big enough for meetings. Other updates included ADA-compliant bathrooms and kitchenette, along with a dining area.

Community volunteers helped preserve the cherished building

To West Work’s surprise, when we went to the first site visit, it was clear how much the community cared about the property. Volunteers had cleaned up the site and installed new cedar shake roofing. The community—including the Friends of the Ellisville Marsh, which works to maintain the marsh ecosystem and property—had raised the funds and manpower to renovate the exterior building on their own. It became clear that this was not our project—this was the community’s. Their enthusiasm and dedication to the site was unexpected, yet meaningful to encounter.

West Work’s rendering of the rehabilitated farmhouse